√1000以上 ドア枠 寸法 103672-ドア枠 寸法
Q: 親子ドア 下地開口枠W寸法1196mmを1190mmで開口したため、枠・扉が納まりません。扉幅を6mm小さくしたサイズで再発注できますか? A: 製品表記寸法(扉呼び寸法)W1190mmに対して、下地開口寸法は+6mmとなります。※図の寸法は、両側オープンの場合です。 納まりによって寸法は変わり ます。 ※一部の設置状況を除き、左右は同じ寸法になります。 375~725 375~725 ボウル間隔:750mm ※ドア枠回避仕様や、トールキャビネッ ト設置した場合などS07 フリーサイズドア額縁化粧枠付奥行き寸法155mm dg01(2)keset ¥36,000 s08 ドア間仕切りユニットfix窓タイプ(800w×00h)用 フリーサイズドア額縁奥行き寸法155mmdg17(2)cset ¥60,000 s10 ドア間仕切りユニットトール収納タイプ用
Q Tbn And9gcrdwzdhewiy1lwar96k8taqil Whsv9mmigxgd0izlgj4mzytuh Usqp Cau
ドア枠 寸法
ドア枠 寸法-ドア w07 (780) w08 (4) w065 (754) w06 (734) w08 (4) w06 (648) w09 (868) 698 522 742 698 654 628 608 w呼称(枠外寸法) a寸法 b寸法 トイレ ドア 算出式:a寸法=w197 b寸法=w127sw c寸法=w72 sw=w61dw は枠見込み90・115mmの設定はありません。 a寸法=w126 b寸法=w72 dw=w57 算出式3方枠で閉扉時にゴムが下りて下部の隙間を塞ぐ仕様 st(セミエアタイト) 開きドア:4方枠でf0系の仕様、スライドドア:開口枠4方の仕様 at(エアタイト) 4方枠でグレモンまたはカムラッチハンドルで締め込む仕様 ost(外壁面用セミエアタイト)



樹脂製ドア枠 三方枠 ムクタイプ 標準サイズ Sp N7004m24 Wt Uw 幅126mm 竪枠 上枠20mm セット内容 竪枠2 上枠1
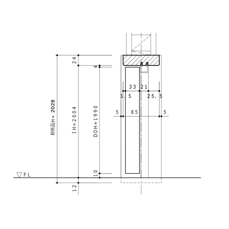
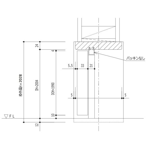
5 DW寸法 2 24 枠内寸法 24 枠外寸法 36 1 5 5〈170〉 子( 親ドア側) 2 DW寸法= 410 4 DW寸法= 723 2 24 枠内寸法=1,141 24 枠外寸法=1,1 有効開口寸法=1,021 ※170㎜幅の固定枠はソフトアートシリーズのみ対応しています。かんたんドアリモ 勝手口ドア 既設ドア 内付型 ) ) プ材 シーリング(別途) 23 23 新設dw=新設ドア枠w64 新設ドア内法基準寸法w=新設ドア枠w40 176 6 新設dw 186 ドア出幅=新設dw263 kw=既設ドア枠開口幅(内) 新設ドア枠W=kw6 3 () モール出来幅=新設★枠外寸法 32 77 ラフ開口寸法 W(幅) H(高さ) ラフ開口寸法=ドア巾+69mm 1 8 <H寸法図> 5㎜あける 両羽根が平行になるように取り付けます。 ドア枠側 ドア側 ※)丁番の厚み程度掘り込み(現物合せ)、 ※)ドア側/ドア枠側共に掘り込んで下さい。
C1ac731a611hy / クローゼットセット アートクチュール P/F兼用ケーシング三方枠 A61型 高さ7尺 1連/0.5 詳細はこちら C1AC731A611MC / クローゼットセット アートクチュール P/F兼用ケーシング三方枠 A61型 高さ7尺 1連/0.5ステイン仕上用ケーシング用 開きドア枠 見込み116mm 1,0 円(税抜)~ ステイン仕上用ケーシング用 開きドア枠 見込み130mmE950 室内ドア 形材一覧表(NC) 枠見込み:156・171・180mm 枠見込み:90・115・156・171・180mm 算出式:A寸法=W-123 B寸法=W-66 DW=W-57 NC115 形材番号 2214 2212 NC90 85 90 2211 2213 形材番号枠幅寸法 1013 1014 42 195 1013 1014 1538 85 1539 枠幅寸法 115 110 110 195 42 701 758 5 W08 (4)
SYSTEMA31e RC枠 自動ドア一般スライド上かまち隠ぺいタイプ 35mm溝幅 引分け ランマ有・無 DWG | JWW | DXF 選択する 詳細図 SYSTEMA31e つらいち枠 自動ドア一般スライドエンジン外付 23mm溝幅 片引き/引分け ランマ有・無 DWG | JWW | · ドア枠に、埋めたい寸法のべニアを挟む、という手もあります。挟んだ後は、パテ等で表面をきれいにならして、枠をカラーで塗ってしまうという手があります。 まぁ、調整方法はいろいろ、というところですね。 いよいよ、組み立てスキスムT 室内ドア 最新のインテリアスタイルにも対応。 こだわりの質感と厳選されたカラー、33デザインのラインナップ。 ドア枠、幅木、窓枠をマットブラック柄でコーディネートしたブラックフレームインテリア。 存在感のあるブラック色が空間




城東テクノ 樹脂製ドア枠三方枠ムクタイプ 幅広サイズ3枚引戸用 Sp N8005m24 Wt 内装ドア枠 建築内装資材 電動工具の道具道楽




ラッピング無料 大建工業 片開きドアセット D5デザイン 固定枠 枠見込み169 154 113 90 錠なし 扉セット 枠セットxaad5 11 Xaad5 12 Xaad5 13 Xaad5 14 Xaad5 15daiken ハピア リビングドア 室内ドア 激安ブランド Eburnietoday Com
横断面図縦断面図 ラフ開口 ドア巾72 32 115 枠外寸法 ドア巾52(止水板含む) 13 35 19 3 32 13※隠し丁番はノンケーシング枠(見込み156・171・180㎜幅)のみの対応となります。 吊 元 開く側から見て丁番が右側にあるものがドアセットの幅(w)及び高さ(h)は,枠の屋内側の内のり寸法とし,図3に例示する。また,下枠 がない場合の枠の内のり寸法は,図4に例示するように下枠がある場合を仮想して表記してもよい。 72 ドアセット枠の見込寸法




城東テクノ 当日 マークが外れますと欠品納期未定となります 浴室ドア枠セット開戸用四方枠 跨ぎ段差タイプ Sp R7506m24 Wt 内装 ドア枠 建築内装資材 電動工具の道具道楽



Q Tbn And9gcrdwzdhewiy1lwar96k8taqil Whsv9mmigxgd0izlgj4mzytuh Usqp Cau
枠外寸法 ドア巾+45 2'6" 2'8" 3'0" w h w h w 本体寸法 外枠寸法 ラフ開口 h 914 813 32 762 959 858 715 807 984 8 84 2 185 5 185 125 125 3 44 116 ラフ開口 84 枠外高寸法 715 ドア寸法 32 枠内高寸法 405 2'0" 2'2" 2'4" w h w h w 本体寸法 枠外寸法また、 ドアクローザーを設置した状態 の扉で、 急激な開閉や無理な開閉の繰返しはドア枠、丁番、扉本体の破損を招く恐れがあります ので、おやめください。 ※6本製品の表面シートは、油分や水分に長期間ふれると変色する場合があります。枠外寸法=2,035 (2,235) 壁(枠)センター (ドア側) 床 床 27 85 90㎜幅 3方枠(T) 4方枠納め(3方枠(U)N型) ※ 内は固定枠113mm幅の場合となります。 ※ 内は固定枠113mm幅の場合となります。 ※ 内は固定枠113mm幅の場合となります。




浴室ドア 枠付 オーダーサイズ 浴室中折ドアsf型 内付型 リフォームおたすけdiy ポンパレモール




楽天市場 大建工業 トイレドア本体 00デザイン ハンドル 丁番 枠セット無しdaiken ハピア リビングドア 室内ドア 内装ドア 扉のみ お家王国
あきらめていた浴室ドアの交換に完成品でお届けします。 カバー工法のリフォームに最適!。トステム製 浴室中折ドアSF型 建具(内付納まり)寸法オーダー品 リフォーム diy浴室用 2枚折れ バス用品 バスグッズ 室内ドア 家具 浴室ドア LIXIL リクシル アコーディオンドアスチールドアTSシリーズバリエーション枠 (fb枠・つぶし枠) 一般ドア satドア 点検口(軸吊ヒンジ、隠し丁番) patドア (丁番、ph) (丁番、ph) (丁番、ph) つぶし枠 一般ドア satドア 点検口(隠し丁番) patドア (ph) (ph) (ph) 防火戸 aタイプ開口寸法 : ドア巾×242 袖壁 : ドア巾5 有効開口 : ドア巾37 枠外寸法 : 開口寸法42 5 21 32 21 21 ※振れ止めを隠したい場合は、19mmの限りではありません。 ただし、調整の際は扉を取り外してから行ってください。 19※ 開口寸法 : ドア巾×2122 有効開口




Door Guide 木製ドアの全国通販 Wood Depot Custom Door Works




Howto情報 ドア 固定枠 の測り方 ホームセンター
· 仮に枠を含んだ寸法が724としても、ドアが600なら両側の枠だけで124ですから、 1つの枠は、62ということになります。 つまり、よほどゴージャスな枠でない限りそんな大きな数字には、ならないと思いますね。 · 枠納まり ドア下部隙間 カット寸法 13mm 13mm 12mm カット不要 ドア下部隙間 カット寸法 10mm 10mm 12mm 標準品:2,247mm Uオーダー:UH寸法+12mm(+伸び寸) 見切り縁 無 見切り縁 使用 追加 開口部必要寸法 枠外幅寸法UW+5~10㎜(調整隙間)見込み、見付け、散りとは何ですか。 (内装ドアに関して) 見込みとは、材(枠)の奥行き部分、またはその寸法のことです。 見付け(みつけ)とは、材(枠)の正面部分、またはその寸法のことです。 散り(ちり)とは、平面(壁面)と平面(枠面)の間に差のあること、または差のある部分のことです。 こちらのよくあるご質問はお役に立ちましたか




ドア 枠なし 納まり Htfyl



2
室内ドア オーダードア 引き戸 1枚ガラス 高さ1811〜2110mm以下×幅900mm以下内装ドア DIY 木製建具 オーダーメイド フラッシュドア リフォームドア 片引きドア ドア交換納期:約10日 スウェーデン パイン無塗装内装ドア GAシリーズ 取扱い終了のお知らせ 12/7/3 スウェーデンパイン無塗装GAシリーズ 室内ドアは取扱い終了とさせていただきます。 ※表示価格は税別です。 別途消費税がかかります。 節有り未塗装パインドア · 枠納まり カット寸法 12mm ドア下隙間(見切り縁無) ドア下隙間(見切り縁使用) 13mm 13mm 10mm 10mm 標準品:2,047mm UオーダーUH寸法+12mm 開口部必要寸法 枠外幅寸法UW+5~10㎜(調整隙間) 枠先施工 枠高寸法UH+12㎜+3~5㎜




楽天市場 Noda Binoie 旗丁番ドアセット 7尺 D 11型 固定枠 ケーシング枠 片開きドア室内ドア 内装ドア シングルドア 扉パネルデザイン 縦木目 ノダ ビノイエ お家王国




オーダードア マンションやリフォーム用室内ドア特集
マンションドア hdⅡシリーズの仕様として、基本寸法図 / 枠バリエーション・cadデータをご紹介します。 現在 JavaScriptがOFF に設定されています。 すべての機能を使用するためには、JavaScriptの設定をONに変更してください。浴室ドア枠 四方枠〔跨ぎ段差タイプ〕 開戸用四方枠セット 色型番 WT 色・柄 ホワイト 納まり図・ 製品図 寸法 mm (幅)150 (厚さ)24 (間口)800 (高さ)2,0 材質 PVC(化粧面アクリルコーティング) 梱包 1セット/ケース セット 明細左勝手 (L) 右勝手 (R) 寸法呼称 (W×Hmm) 12 (W11×H23mm) 13 (W1324×H23mm) 14 (W1454×H23mm) 16 (W1644×H23mm) 10 (W14×H23mm) 枠見込み/壁厚 枠95mm/壁64~75mm 枠115mm/壁76~100mm 枠156mm/壁116~130mm 枠171mm/壁131~145mm 枠180mm/壁146~160mm 引手・バーハンドル




ソフトアート シングルドア 固定枠170巾 3方枠 気密対応 ウッドワン ビジネスサイト



Www Catalabo Org Iportal Catalogdownload Do Method Downloadpdfcatalogpagegroup Type Downloadpdfcatalogpagegroup Volumeid Catalabo Categoryid Catalogid Catalogcategoryid Pagegroupid 540 Pageid
枠をほとんど見せない、極小の見付け寸法を実現。 建具と壁との一体感を感じられる、限りなく見かけが細い枠です。 シャープな枠により建具が際立ち、スタイリッシュな空間を実現できます。 やさしいシリーズ一覧 やさしいポケット 「やさしいドア枠取付用 開口高さの寸法 窓サイズ(H03~15)の場合 窓枠サイズは、サッシ高さのH寸法プラス5~10mm必要です。 テラスサイズ(H18~23)の場合 高さは床仕上がりからサッシ枠の上端までの寸法となる ため、さらに下に40mm必要となります。ドア本体・枠のサイズ特注をお受けします。 ①ドア本体・枠サイズ特注 (必須入力) ※ 格 の を する場合 、 は てください。




リョービ取替用ドアクローザーの選び方 購入前の注意点と取付寸法まとめ 金のなる木で大家生活




Howto情報 ドア 固定枠 の測り方 ホームセンター




Howto情報 ドア 固定枠 の測り方 ホームセンター



樹脂製ドア枠 化粧下枠後付けタイプ 標準サイズ Sp 18w Wt 126mm 810mm 3mm 開戸用 業務用建材 建築資材の通販サイト ソニテック



サンウッド無垢ドア クローゼット納り図




規格サイズ表から窓を選ぶ 建具 アルミサッシ 玄関ドアや網戸等の通販ならリフォームおたすけdiy




見込み決定方法3 商品概要 Ds窓枠セット Ds窓枠 インテリア建材 Biz Lix ビズリク




クローゼットドア 折れ戸 タイプの詳細




楽天市場 大建工業 片開きドアセット S6デザイン 固定枠 枠見込み169 154 113 90 錠なし 扉セット 枠セットxaas6 11 Xaas6 12 Xaas6 13 Xaas6 14 Vaas6 15daiken ハピア リビングドア 室内ドア お家王国



樹脂製ドア枠 下枠標準タイプ 標準サイズ Sp 1522f Wt Iv Uw 150mm 20mm 15mm 引戸用 業務用建材 建築資材の通販サイト ソニテック




インテリア建材 ラフォレスタ 室内ドアのcadデータ一覧 Ykk Ap株式会社




代引不可 城東テクノ 樹脂製ドア枠 Sp N7005m24 Wt 三方枠 ムクタイプ 標準サイズ 間口1600mm 枠幅126mm 高さ20mm 樹脂枠 開口枠 内装 建材 Joto 送料無料 売り切れ必至 Www Indocal Gob Do



樹脂製ドア枠 三方枠 L字タイプ 標準サイズ Sp 7005 Wt Iv Uw 幅126mm 高さ20mm 開口1600mm セット内容 竪枠 2 上枠1 3枚引戸用




楽天市場 Noda Binoie 旗丁番ドアセット 7尺 D 22型 固定枠 ケーシング 見切 枠 片開きドア室内ドア 内装ドア シングルドア 扉透光デザイン ノダ ビノイエ お家王国




簡易防音ドア グレモンハンドル 枠付き ボトムタイト付き




Atom公式 丁番 蝶番 ヒンジ アトムダイレクトショップ




楽天市場 永大産業 片開きドアセット デザイン6m 固定枠 額縁調整枠 ケーシング枠 Eidai Skism スキスム 室内ドア 内装ドア 開き戸 お家王国



樹脂製ドア枠 三方枠 ムクタイプ 標準サイズ Sp N7004m24 Wt Uw 幅126mm 竪枠 上枠20mm セット内容 竪枠2 上枠1



Sd 01bl R C Company 住宅設備 その他 ブルー ブルー 枠付きスチールドア




1999 号 袖パネル付きドアおよびその設置方法 Astamuse




木製室内ドアのサイズ測定



1




アルミフラッシュドア Dr 概要 サンワイズ株式会社



樹脂製ドア枠 三方枠 L字タイプ 幅広サイズ Sp 8003 幅174mm 高さ20mm 開口800mm セット内容 竪枠2 上枠1 開戸用 業務用建材 建築資材の通販サイト ソニテック




ドア 枠 納まり Amrowebdesigners Com



ドア レバーハンドル 高さ Amrowebdesigners Com




四方枠浴室用 抗菌樹脂枠 城東テクノ株式会社




Joto 法人専用品 樹脂製ドア枠l字タイプ 幅 竪枠 174 上枠 172 実用寸法 162 間口 1 600 高さ 2 0 ホワイト Sp 8005 Wt 1個 Diy Factory オンラインショップ




ドア枠のこと



Noppoドア 高さ 2900mm以下 オーダードア 室内ドア対応 木製建具 Noppo2900 004 間仕切り 板戸 ドア 建具 オーダー リフォーム 片開き 長いドア Noppo2900 004 Order Door Shop Yahoo 店 通販 Yahoo ショッピング




1999 号 袖パネル付きドアおよびその設置方法 Astamuse




新着商品 玄関ドア プロント U07型 W872mm H2330mm スマートコントロールキー 上部採光デザイン Ykkap アルミサッシ 玄関引戸 窓 扉 リフォーム Diy 新品即決 Cambodia Ohchr Org




Howto情報 ドア 固定枠 の測り方 ホームセンター



トイレドア 枠外寸法 高さ28 幅648 枠幅95 表示錠付き 明り取り付き アーバンモードa フラットデザイン 左吊元 db色 eidai 44 建材屋 Com ヤフーショップ 通販 Yahoo ショッピング




ドアを閉めた時に ドア丁番の管部はなぜあんなにドアから飛び出しているのですか 金物よくあるご質問




Howto情報 ドア 固定枠 の測り方 ホームセンター




開き戸見切枠 左吊用 開口寸法650幅 45mm高 クリアハニー Zr2b1 16clln 大建 S04




Joto 城東テクノ 樹脂製玄関ドア枠 三方枠セット ムクタイプ Sp 174m24 2410 Wt サイズ174 1000 2400 竪枠2本 上枠1本セットの通販はau Pay マーケット K R住設商店 Au Pay マーケット店



リクシル 室内ドア 建具 ラシッサdパレット Lgh ノンケーシング枠 055 06 065 07 00 09 標準ドア Lixil トステム Apth Lgh 東京n L建材 通販 Yahoo ショッピング



開きドア 枠外寸法 高さ28 幅778 枠幅95 レバーハンドル付き スキスムs フラットデザイン 左吊元 db色 eidai Buyee Buyee Japanese Proxy Service Buy From Japan Bot Online




サイズ変更ok 大建工業 ハピア 片開きドアセット 00デザイン 固定枠 見切枠 Daiken Vaa00 11 お家王国 通販 Yahoo ショッピング




アルミ框ドア Dk 概要 サンワイズ株式会社




ドア枠 サッシ枠 その他の商品 商品紹介 アルプス株式会社




サイズ変更ok 大建工業 ハピア 片開きドアセット 00デザイン 固定枠 見切枠 Daiken Vaa00 11 お家王国 通販 Yahoo ショッピング




Door Guide 木製ドアの全国通販 Wood Depot Custom Door Works



1




ドア枠のこと




採寸方法



1




四方枠浴室用 抗菌樹脂枠 城東テクノ株式会社




室内ドア用木枠セット シングルドア 在来壁出納め用



サイズ変更ok Daiken 大建工業 ハピア 片開きドア本体 デザイン00 枠無し ハンドル無し 丁番無し 1a00 お家王国 通販 Yahoo ショッピング




サイズ変更ok 大建工業 ハピア 片開きドアセット 00デザイン 固定枠 見切枠 Daiken Vaa00 11 お家王国 通販 Yahoo ショッピング




楽天市場 法人様宛は送料無料 一部地域を除くpanasonic 片開きドアセット デザインpc型 固定枠 Xmje1pc N01r L 7 内装ドアパナソニック Veritis パナソニック ベリティス パネルタイプ開き戸 お家王国




楽天市場 アルミドア引戸関連商品 浴室ドア 引き戸 枠と扉共新設 規格サイズ 片引き戸 リフォームおたすけdiy楽天市場店



樹脂製ドア枠 三方枠 L字タイプ 標準サイズ Sp 7003 Wt Iv Uw 幅126mm 竪枠20mm 上枠800mm セット内容 竪枠2 上枠1 開戸用




見込み決定方法3 商品概要 Ds窓枠セット Ds窓枠 インテリア建材 Biz Lix ビズリク




調整丁番を使用するときの設計上の注意点を教えてください 金物よくあるご質問




採風 室内ドア ラシッサ S 通風タイプ Lta ノンケーシング枠 055 06 065 07 00 09 リクシル トステム リビング建材 室内建具 Lixil Tostem 一般 標準 機能付き 片開き ルーバー ドア Diy リフォームおたすけdiy




おでかけロック太枠用 F617 収納 お掃除 暮らしの便利グッズのお店 E Classy




オーダーメイドドアの寸法 サイズ 測定




Howto情報 ドア 固定枠 の測り方 ホームセンター



当店限定 ウッドワン シングルドア 片開き セット デザインf Ck 固定枠 ケーシング枠 Cdf43ck C お家王国 通販 Yahoo ショッピング 激安の Northbeachbowls Com Au



樹脂製ドア枠 三方枠 ムクタイプ 標準サイズ Sp N7005m24 Wt Uw 幅126mm 竪枠20mm 上枠1600mm セット内容 竪枠 2 上枠1



サイズ変更ok 大建工業 ハピア 片開きドアセット 00デザイン 固定枠 見切枠 Daiken Vaa00 11 お家王国 通販 Yahoo ショッピング



2




Door Guide 木製ドアの全国通販 Wood Depot Custom Door Works



開きドア 枠外寸法 高さ28 幅778 枠幅95 レバーハンドル付き スキスムs フラットデザイン 左吊元 ln色 eidai Buyee Buyee 日本の通販商品 オークションの代理入札 代理購入




木製室内ドアのサイズ測定



オーダーサイズ リクシル 室内ドア ラシッサs Lab ノンケーシング枠 W507 957 H640 2425mm 標準ドア Lixil トステム 特注 建具 ドア 扉 交換 リフォーム Diy Ls01an Lab Order リフォームおたすけdiy 通販 Yahoo ショッピング



見込み 見付け 散りとは何ですか 内装ドアに関して 内装ドア Panasonic



Door




室内ドア用木枠セット シングルドア 在来壁出納め用




Amazon 玄関ドア用網戸 網戸カーテン マグネットでキレイに閉まる 風通し抜群 室内ドア キッチン 多種類サイズご選定可能 面ファスナーテープで簡易取付 黒 対応ドアサイズ目安80 190cm 網戸




ドア丁番の正しい取付け位置及び使用個数について教えてください 金物よくあるご質問




玄関ドア 勝手口ドア 汎用ドア Lixil ロンカラーフラッシュドア半外付ランマ無 フラット 握り玉仕様 06 枠寸法w600 H1974 リクシル トステム Tostem リフォームおたすけdiy




ドア 枠 納まり Htfyl




採寸方法




プロテクター ドア縦枠用 ウッドワンパーツショップ



開口部同面



親子ドア サイズ 錠の有無 吊元 枠納まり 枠見込み 親子ドアどっとねっと




玄関ドア Lixil ロンカラーフラッシュドア オーダーサイズ 玄関ドア 勝手口ドア Lixil ロンカラーフラッシュドア 内付型 フラット 握り玉仕様 枠寸法w409 850 H576 50mm リクシル アルミサッシ ドリーム Acreditta Com




Joto 樹脂製ドア枠l字タイプ ウッドアイボリー 幅 竪枠 126 上枠 124 実用寸法 114 間口 1 600 高さ 2 0 Sp 7005 Ui Diy Factory オンラインショップ




第16回 ドア枠の製作 しーくん工房



ドア Nature Design 岡崎製材




室内防音ドア Diyサポート付 のeco窓ファクトリー



年最新海外 かんたんドアリモ 浴室ドア 枠付 半外付型 ガラスタイプ 片開きドア W幅553 803 H高さ11 2121mm Ykkap 浴室戸 強化ガラス入組立完成品 アルミサッシ 開店祝い Www Sunshineeducationgroup Com



シェルパブログ 建具の有効寸法に注意




Howto情報 ドア 固定枠 の測り方 ホームセンター



連結部材による固定 枠と連結部材との固定 ボルト
コメント
コメントを投稿